Réf : D20005-V20032

Cap-d'Ail (06320) CAP D'AIL, SUPERBE 4 PIECES DERNIER ETAGE AVEC VUE PANORAMIQUE MER ET 1 GARAGE.

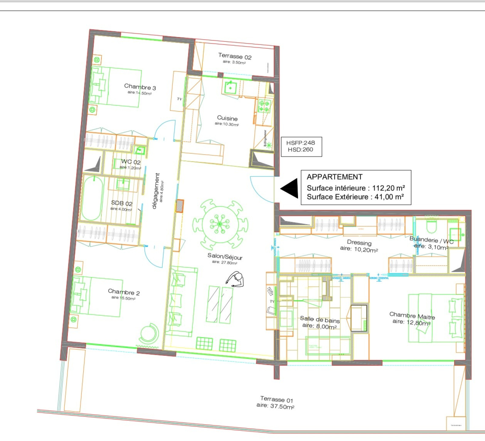
Au coeur de Cap d'Ail, nous vous proposons ce superbe appartement, en excellent état, de 4 pièces de 112.50 m2 habitables + 34.50 m2 de terrasses. Situé en dernier étage, ce bien bénéficie d'une superbe vue mer panoramique avec le Cap Ferrat en fond. L'appartement offre de nombreux atouts. Il est en effet très lumineux et propose des aménagements sur mesure (placards, dressings, cuisine,...). Il est également situé au calme tout en restant proche de toutes les commodités en bénéficiant d'un accès rapide à Monaco. Un grand garage et une belle cave complètent ce bien rare sur le marché. Il y a également la possibilité d'acquérir un deuxième grand garage fermé et automatisé pour 80.000 Euros.


Les informations sur les risques auxquels ce bien est exposé sont disponibles sur le site Géorisques

Les caractéristiques Du bien

Code postal 06320
Surface habitable (m²) 112,50 m²
Surface loi Carrez (m²) 112,47 m²
Nombre de chambre(s) 3
Nombre de pièces 4
Etage 3
Ascenseur OUI
Vue Panoramique mer et Cap Ferrat
Nb de salle de bains 2
Cuisine Américaine
Type de cuisine Equipée
Mode de chauffage Fioul
Type de chauffage Radiateur
Format de chauffage Collectif
Interphone OUI
Balcon OUI
Terrasse OUI
Nombre de garage 1
Cave OUI
Surface cave (m²) 5.44
Exposition Sud
Année de construction 1966
Copropriété OUI
Lot n° 50
nombre de lots 47
Quote Part annuelle des charges 7 800 €

Les infos Financières

Prix de vente honoraires TTC inclus 1 490 000 €
Charges 650 €
Taxe foncière annuelle 3 061 €

Les infos Energetiques

DPE GES
DPE ANCIENNE VERSION

Nos outils

Imprimer

Localisation Du bien

  • Commerces et santé
  • Loisirs
  • Ecoles
  • Transports
  • Pratique
Intéressé(e) par Ce bien ?

* Champ obligatoire

contacter l'agence
Les informations recueillies sur ce formulaire sont enregistrées dans un fichier informatisé par La Boite Immo agissant comme Sous-traitant du traitement pour la gestion de la clientèle/prospects de l'Agence / du Réseau qui reste Responsable du Traitement de vos Données personnelles. La base légale du traitement repose sur l'intérêt légitime de l'Agence / du Réseau. Elles sont conservées jusqu'à demande de suppression et sont destinées à l'Agence / au Réseau. Conformément à la loi « informatique et libertés », vous disposez des droits d’accès, de rectification, d’effacement, d’opposition, de limitation et de portabilité de vos données. Vous pouvez retirer votre consentement à tout moment en contactant directement l’Agence / Le Réseau. Consultez le site https://cnil.fr/fr pour plus d’informations sur vos droits. Si vous estimez, après avoir contacté l'Agence / le Réseau, que vos droits « Informatique et Libertés » ne sont pas respectés, vous pouvez adresser une réclamation à la CNIL. Nous vous informons de l’existence de la liste d'opposition au démarchage téléphonique « Bloctel », sur laquelle vous pouvez vous inscrire ici : https://www.bloctel.gouv.fr Dans le cadre de la protection des Données personnelles, nous vous invitons à ne pas inscrire de Données sensibles dans le champ de saisie libre.
Ce site est protégé par reCAPTCHA, les Politiques de Confidentialité et les Conditions d'Utilisation de Google s'appliquent.
Ces biens peuvent aussi vous intéresser
Coup de coeur
Roquebrune-Cap-Martin (06190)

VILLA 177 M². PROCHE MONACO. VUE MER. 4 CHAMBRES. STUDIO INDEPENDANT

Èze (06360)

Grand 4 pièces au dernier étage de maison avec terrasses, parkings...